Thông tin dự án căn hộ dịch vụ tại Bình Tân
- Chủ đầu tư: Chị Hoa
- Địa điểm: Bình Tân
- Quy mô: 4 tầng
Giữa bối cảnh ‘đất chật người đông’ tại các thành phố lớn, việc lựa chọn mô hình căn hộ dịch vụ mini kết hợp kinh doanh chính là bước đi thông minh của những nhà đầu tư nhạy bén. Mẫu nhà này không chỉ giải quyết bài toán diện tích mà còn tạo ra dòng tiền kép ổn định từ việc ở và cho thuê lâu dài.
Tại An Cư, chúng tôi ưu tiên phong cách hiện đại với lối tư duy tối ưu hóa công năng diện tích nhỏ. Nội thất được tinh chỉnh gọn gàng, kết hợp cùng các khoảng thở xanh giúp không gian luôn thông thoáng, bắt mắt khách thuê. Hãy cùng điểm qua những nét độc đáo của công trình này qua bài viết sau!


Tối ưu hóa nguồn sáng tự nhiên là ưu tiên hàng đầu trong mọi không gian của căn hộ này. Bằng việc ứng dụng khéo léo các mảng kính lớn, ánh sáng được điều phối thông minh để bao phủ toàn bộ ngôi nhà, mang lại cảm giác rộng rãi và thông thoáng tuyệt đối. Không chỉ dừng lại ở công năng, giải pháp này còn hướng tới giá trị nhân văn – nơi ánh sáng tự nhiên trở thành nguồn năng lượng tái tạo tinh thần và nâng cao chất lượng sống cho gia chủ.
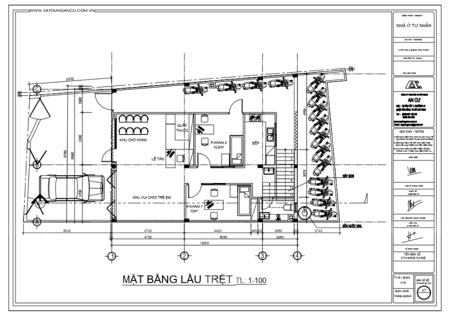
Giải pháp thiết kế thi công mô hình căn hộ dịch vụ kết hợp kinh doanh
Phối cảnh 3D nội – ngoại thất:
Sở hữu diện mạo đầy lôi cuốn với hình khối vuông vức, toát lên vẻ đẹp tinh tế và hiện đại. Sự kết hợp tài tình giữa gam màu trắng – xám trung tính cùng các đường nét lam gỗ sắc sảo và mảng xanh thiên nhiên đã tạo nên một tổng thể sang trọng nhưng vẫn vô cùng ấm cúng.
- Tầng trệt: Được quy hoạch theo lối kiến trúc mở, là không gian vàng cho các loại hình kinh doanh như văn phòng đại diện, quán café boutique, spa hay cửa hàng tiện lợi…
- Từ tầng 2 trở lên, Mỗi mặt sàn được phân tách thông minh thành 2 – 3 căn hộ studio hoặc 1 phòng ngủ (1PN). Đây là lời giải hoàn hảo cho bài toán cho thuê đa dạng, từ lưu trú ngắn ngày đến dài hạn, nhắm đến phân khúc khách hàng tiềm năng như giới trẻ năng động, nhân viên văn phòng và khách du lịch.




Mỗi căn hộ tại đây là một sự kết hợp hoàn mỹ giữa ánh sáng tự nhiên, gió trời và những khoảng ban công thoáng mát. Việc đan xen các mảng xanh từ ban công đến tầng thượng không chỉ tạo nên điểm nhấn thẩm mỹ duyên dáng mà còn đóng vai trò là ‘lá phổi tự nhiên’, điều hòa khí hậu cho không gian sống. Đặc biệt, sự tách biệt tinh tế giữa lối đi của khu vực kinh doanh và lối dẫn vào căn hộ giúp bảo mật tuyệt đối quyền riêng tư cho gia chủ.


Thiết kế căn hộ 1


Thiết kế căn hộ 2

Hình ảnh thi công thực tế
















Quy trình thiết kế và thi công căn hộ dịch vụ là một bài toán tổng thể đòi hỏi sự phối hợp nhịp nhàng của nhiều hạng mục phức tạp. Những thông tin nêu trên chỉ là những mắt xích điển hình trong chuỗi giá trị mà An Cư mang lại. Chúng tôi cam kết trực tiếp vận hành và giám sát sát sao toàn bộ tiến độ, đảm bảo bàn giao một công trình hoàn hảo, thỏa mãn trọn vẹn bộ ba tiêu chuẩn: An toàn – Chất lượng – Thẩm mỹ.


