Mẫu thiết kế căn hộ cho thuê Quận 12

Thiết kế mặt tiền căn hộ cho thuê Quận 12

Thông tin dự án căn hộ cho thuê Quận 12

  • Chủ đầu tư: Anh Thắng
  • Địa điểm: Nguyễn Ảnh Thủ, Hiệp Thành, Quận 12
  • Quy mô: 6.5*30, 5 tầng, mái tổng diện tích 780m2

Nội dung thiết kế căn hộ cho thuê Quận 12

Mẫu nhà phố kết hợp cho thuê được định hình theo phong cách hiện đại với hình khối rõ ràng, bố cục gọn gàng và diện mạo tinh tế. Hệ ban công kính giúp công trình mở rộng tầm nhìn, tăng sự kết nối với không gian bên ngoài. Tầng thượng được bố trí mảng xanh hợp lý, vừa tạo điểm nhấn kiến trúc vừa mang lại không gian thư giãn và góp phần cải thiện vi khí hậu cho toàn bộ ngôi nhà.

Thiết kế mặt tiền căn hộ cho thuê Quận 12
Thiết kế mặt tiền căn hộ cho thuê Quận 12
Bản vẽ thiết kế căn hộ cho thuê Quận 12
Bản vẽ thiết kế căn hộ cho thuê Quận 12
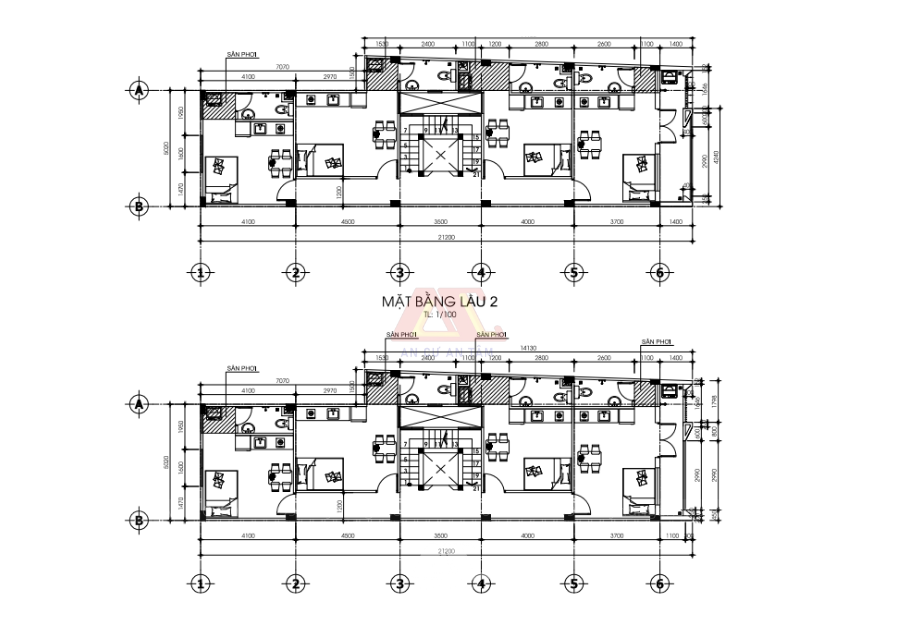
Bản vẽ thiết kế căn hộ cho thuê Quận 12 lầu 2
Bản vẽ thiết kế căn hộ cho thuê Quận 12 lầu 2
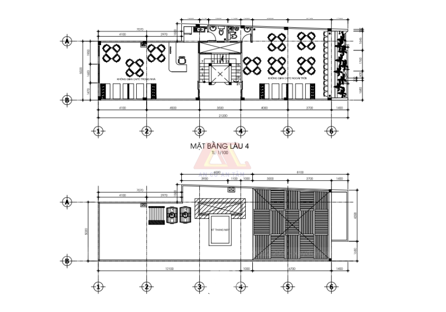
Bản vẽ thiết kế căn hộ cho thuê Quận 12 lầu 4
Bản vẽ thiết kế căn hộ cho thuê Quận 12 lầu 4
Mặt cắt thiết kế căn hộ cho thuê Quận 12
Mặt cắt thiết kế căn hộ cho thuê Quận 12

Hình ảnh thi công thực tế

Khởi công xây dựng căn hộ cho thuê Quận 12
Khởi công xây dựng căn hộ cho thuê Quận 12
Thi công thép sàn chuẩn bị cho phần đổ bê tông nền
Thi công thép sàn chuẩn bị cho phần đổ bê tông nền
Kiểm tra độ sụt bê tông trước khi tiến hành đổ nền
Kiểm tra độ sụt bê tông trước khi tiến hành đổ nền
Đổ nền bê tông đúng quy trình, đảm bảo độ phẳng và khả năng chịu lực
Đổ nền bê tông đúng quy trình, đảm bảo độ phẳng và khả năng chịu lực
Triển khai thi công cột tại tầng tiếp theo của công trình
Triển khai thi công cột tại tầng tiếp theo của công trình
Công trình được thi công bởi tổ đội chuyên nghiệp, kinh nghiệm lâu năm, đảm bảo kỹ thuật và chất lượng
Công trình được thi công bởi tổ đội chuyên nghiệp, kinh nghiệm lâu năm, đảm bảo kỹ thuật và chất lượng
Xây tường bao cho công trình nhà phố kết hợp cho thuê căn hộ ở quận 12
Xây tường bao cho công trình nhà phố kết hợp cho thuê căn hộ ở quận 12
Gạch đinh được xây tại vị trí gối cửa nhằm tăng khả năng chịu lực và liên kết kết cấu
Gạch đinh được xây tại vị trí gối cửa nhằm tăng khả năng chịu lực và liên kết kết cấu
Đóng lưới chống nứt tất cả các vị trí ống điện và tường tiếp giáp dầm cho toàn nhà
Đóng lưới chống nứt tất cả các vị trí ống điện và tường tiếp giáp dầm cho toàn nhà
Xử lý chóng thấm các khu vực thường xuyên tiếp xúc với nước
Xử lý chóng thấm các khu vực thường xuyên tiếp xúc với nước
Đinh kẹp giúp cố định các tấm gạch chắc chắn, đảm bảo độ khít và tính đồng đều
Đinh kẹp giúp cố định các tấm gạch chắc chắn, đảm bảo độ khít và tính đồng đều
Hoàn thiện và bàn giao công trình cho chủ đầu tư
Hoàn thiện và bàn giao công trình cho chủ đầu tư

Với phương châm chất lượng đặt lên hàng đầu, Công ty Xây dựng An Cư cam kết mang đến cho khách hàng những công trình đạt chuẩn kỹ thuật, chi phí hợp lý và đúng tiến độ.

An Cư tự hào là đơn vị thiết kế và thi công uy tín tại Tp. Hồ Chí Minh và các tỉnh lân cận, được nhiều khách hàng và các đơn vị truyền thông uy tín đánh giá cao về chất lượng dịch vụ xây nhà trọn gói.

BÌNH LUẬN - HỎI ĐÁP

Hãy để lại câu hỏi của bạn, chúng tôi sẽ trả lời

Tư vấn miễn phí
zalo